
· 용량 : 5 -100 ton
· 스트로크 : 50 -250 mm
· 최대압력 : 700 bar
· ESCH : 단동식 & 스프링 리턴 타입
· EDCH : 복동식 & 유압 리턴 타입
· 커플러 포트 : PT 3/8
· 알루미늄 튜브 적용 가능(옵션)
· 기타 사이즈 제작 가능(옵션)

| 모델 번호 | 타입 | 용량 (ton) | 스트로크 (mm) | 오일 용량 (cc) | 유효 면적 (cm2) |
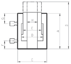
기본 높이 A (mm) |
연장 높이 B (mm) |
외경 C (mm) | 내경 D (mm) | 로드직경 E (mm) |
전진포트 ~ 바닥면 F (mm) |
후진포트 ~ 상단부 G (mm) |
센타홀 직경 H (mm) |
무게 (kg) |
|---|---|---|---|---|---|---|---|---|---|---|---|---|---|---|
| ESCH-1050 | 단동식 | 10 | 50 | 88 | 176 | 130 | 180 | 75 | 55 | 38 | 26 | - | 20 | 3.4 |
| ESCH-2015 | 20 | 15 | 49 | 32.8 | 130 | 145 | 105 | 75 | 55 | 33 | - | 27 | 3.2 | |
| ESCH-2050 | 20 | 50 | 164 | 32.8 | 165 | 215 | 105 | 75 | 55 | 33 | - | 27 | 5 | |
| ESCH-2075 | 20 | 75 | 246 | 32.8 | 190 | 265 | 105 | 75 | 55 | 33 | - | 27 | 7 | |
| * ESCH-20150 | 20 | 150 | 75 | 55 | 33 | - | ||||||||
| ESCH-3060 | 30 | 60 | 286 | 47.7 | 180 | 240 | 115 | 90 | 63 | 21 | - | 37 | 12 | |
| * ESCH-30150 | 30 | 150 | 90 | 63 | 21 | - | ||||||||
| ESCH-5075 | 50 | 75 | 530 | 70.7 | 238 | 313 | 159 | 115 | 85 | 30 | - | 54 | 28 | |
| ESCH-6075 | 60 | 75 | 671 | 89.5 | 238 | 313 | 169 | 125 | 85 | 30 | - | 54 | 38 | |
| * ESCH-60150 | 60 | 150 | 125 | 85 | 30 | - | ||||||||
| ESCH-10075 | 100 | 75 | 1155 | 154 | 268 | 343 | 218 | 175 | 140 | 45 | - | 80 | 59 | |
| EDCH-2075 | 복동식 | 20 | 75 | 246 | 32.8 | 195 | 270 | 105 | 75 | 55 | 33 | 50 | 27 | 11 |
| EDCH-3060 | 30 | 60 | 392 | 65.3 | 223 | 283 | 158 | 105 | 80 | 50 | 60 | 37 | 32 | |
| EDCH-30150 | 30 | 150 | 980 | 65.3 | 313 | 463 | 158 | 105 | 80 | 50 | 60 | 37 | 42 | |
| EDCH-30260 | 30 | 260 | 1698 | 65.3 | 423 | 683 | 158 | 105 | 80 | 50 | 60 | 37 | 55 | |
| EDCH-6090 | 60 | 90 | 990 | 110 | 329 | 419 | 165 | 135 | 95 | 55 | 75 | 54 | 38 | |
| EDCH-60130 | 60 | 130 | 1430 | 110 | 369 | 499 | 165 | 135 | 95 | 55 | 75 | 54 | 42 | |
| EDCH-60260 | 60 | 260 | 2860 | 110 | 499 | 759 | 165 | 135 | 95 | 55 | 75 | 54 | 54 | |
| EDCH-10040 | 100 | 40 | 582 | 145.5 | 286 | 326 | 227 | 175 | 150 | 65 | 86 | 80 | 77 | |
| EDCH-100150 | 100 | 150 | 2183 | 145.5 | 396 | 546 | 227 | 175 | 150 | 65 | 86 | 80 | 107 | |
| EDCH-100260 | 100 | 260 | 3783 | 145.5 | 506 | 766 | 227 | 175 | 150 | 65 | 86 | 80 | 138 | |
| EDCH-150200 | 150 | 200 | 4206 | 210.3 | 475 | 675 | 270 | 200 | 160 | 75 | 90 | 85 | 162 |

